Selected Works — Haley Mayes



SW — HM






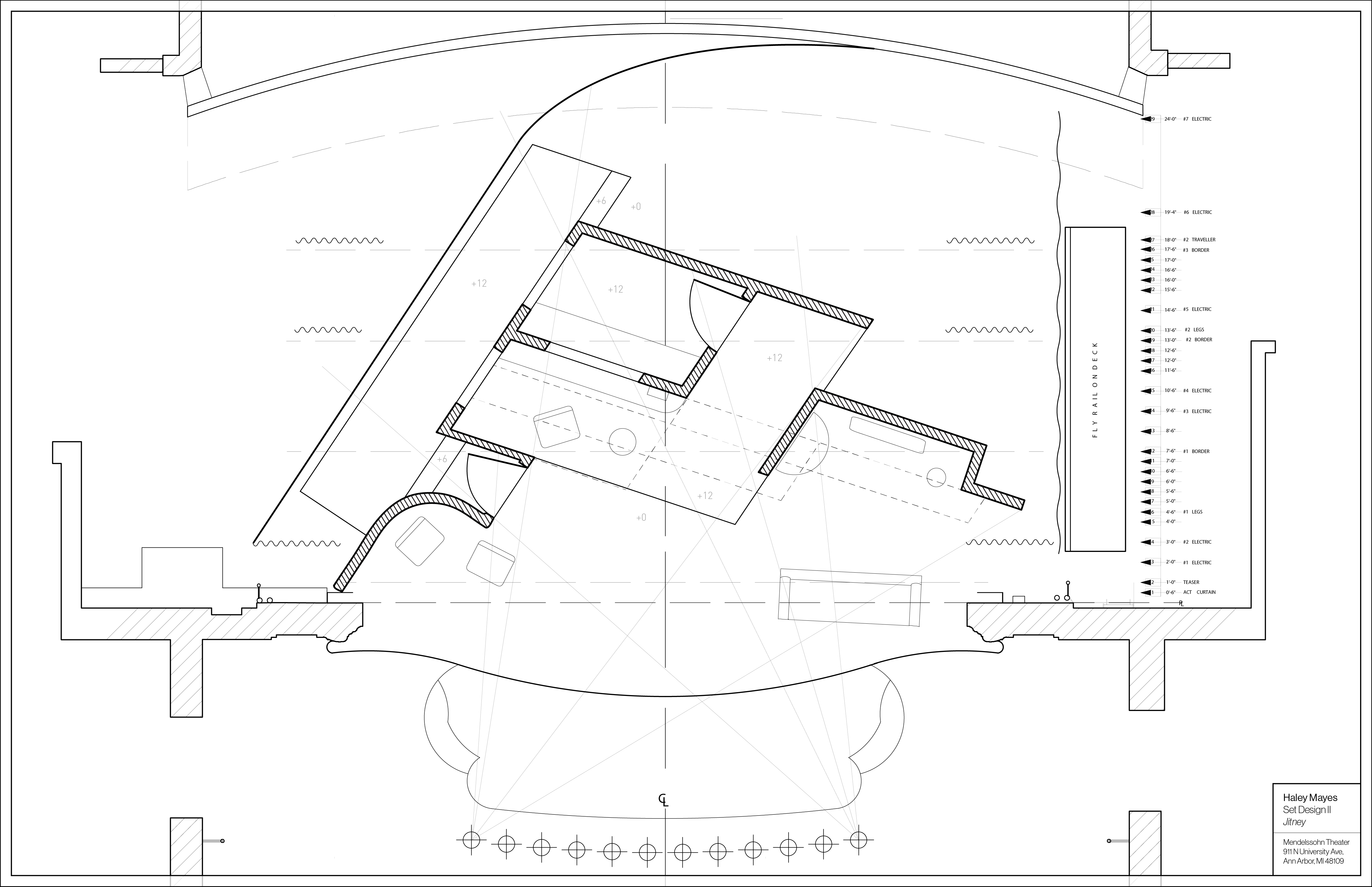
A SET (BOX)



(Above) View from house right. Scale: 1/4” = 1’0”

for August Wilson’s Jitney


Stage Design 2
with instructor Kevin Judge


This box set aims to capture the character of Pittsburgh’s Hill District in the 70s in a space that was perhaps once a bar and is now a second home to the members of the jitney station crew, bearing witness to their spats and their moments of support.



Drafted for the University of Michigan’s Lydia Mendelssohn Theater, a 600-seat proscenium stage.



The station’s telephone sits at the center of the set, as its ringing moves the plot along. Platforms and furniture create pockets and levels for dialogue to occur, whether Turnbo is threatening Youngblood or the latter is sharing an intimate moment with Rena, or Becker and Booster are reuniting. 



The formal goal is simply to create engaging play area for the actors, and the finer details - the ornamentation and materials - are what transport us to the setting.

Becker’s office in the back corner looks out into the “living room” which serves as a catch-all for the various lives that occupy it, yet remains tidy as a matter of pride.




A box set stays the same throughout the play, transforming only with the movement of props and lighting.



A lot of aesthetic inspiration was drawn from the extensive library of photographer Teenie Harris, who documented life in the neighborhood throughout the mid-late 20th century.
(Below) View from house left.
01 mo. winter 2021